【居抜きオフィス】亀戸駅から徒歩4分【49坪・122坪】

閲覧数:181     2025年12月10日更新
カテゴリ: 居抜きオフィス

2010年竣工の【FORECAST亀戸】が2階49.59坪と3階122.41坪を居抜きオフィスで募集!

FORECAST亀戸は明治通り沿いの角地に立地し、ガラス張りの外観による高い視認性が特徴のオフィスビルです。
現在、2区画が居抜きオフィスとして募集されており、江東区内では居抜き・セットアップタイプの供給が限られているため、貴重な募集となっています。
什器は付属しませんが、内装は綺麗な状態で引き渡し可能です。ぜひ現地にてご確認ください。
詳細につきましては、下記よりお気軽にお問い合わせください。

※なお、居抜きでの引き渡しには期限がございますのでご注意ください。
・2階:2025年12月31日までに契約締結
・3階:2026年1月31日までに契約締結

FORECAST亀戸 外観

お問合せ

株式会社クイックコンサルティング
取引態様:媒介 国土交通大臣(4)第7938号
〒103-0027
東京都中央区日本橋3-8-16 ぶよおビル5階
八木 憲政
TEL:03-5201-8040
FAX:03-5201-8041
携帯:080-5681-4212

※お問い合わせの際は「オフィシルマガジンを見て」とお伝え下さい。

亀戸駅徒歩4分、明治通り沿い角地

JR総武線・東武亀戸線「亀戸駅」から徒歩4分と、利便性の高い立地に位置する物件です。
駅北口の大通りに面した角地に建ち、視認性にも優れています。
周辺には昔ながらの商店街が広がり、下町らしい温かい雰囲気が感じられるエリアです。
その一方で、本物件はガラス張りの洗練された外観がひときわ映え、周辺の街並みとの対比により企業イメージを高める佇まいとなっています。
亀戸は錦糸町にも近く、総武線により都心へのアクセスもスムーズです。
飲食店や生活利便施設も多く、働きやすさとコストパフォーマンスを兼ね備えたビジネスエリアとして、多くの企業から支持されています。

FORECAST亀戸 所在地(江東区亀戸2-27-7)

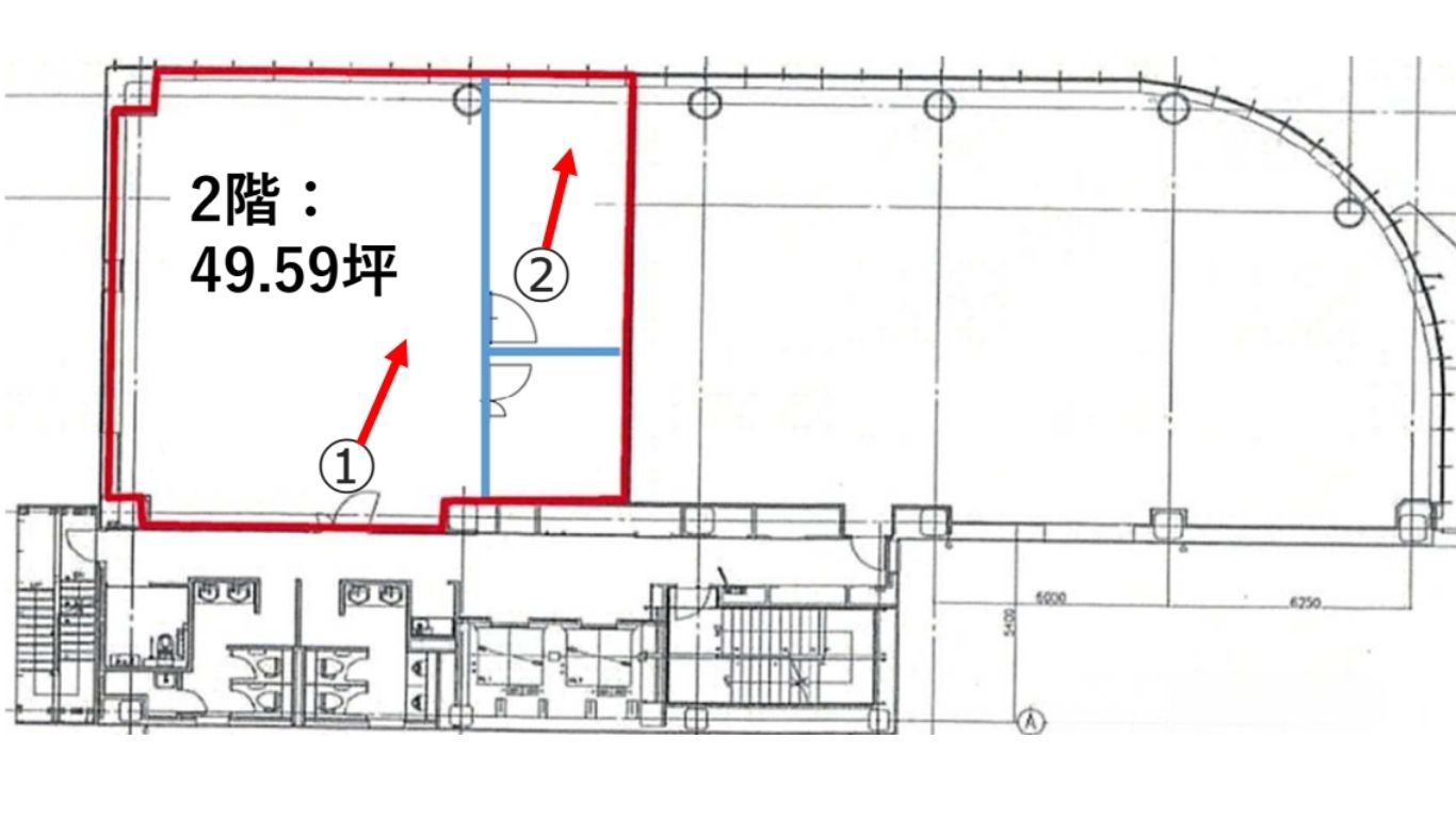
レイアウト図と室内写真

※以下のレイアウト図と写真は一例です。図面と写真より現況が異なる場合は現況を優先します。

FORECAST亀戸 2階49.59坪

貸室内 ※什器は残りません

会議室 ※什器は残りません

3階 122.41坪

受付 ※什器は残りません

会議室 ※什器は残りません

会議室 ※什器は残りません

物件概要

ビル名称:FORECAST亀戸
所在地:東京都江東区亀戸2-27-7
構造規模:鉄骨造 地下1階 地上8階建
敷地面積:539.72㎡
延床面積:4,096.62㎡
竣工:2010年9月
設計:清水建設株式会社 一級建築士事務所
施工:清水建設株式会社 東京建築第三事業部
エレベーター:乗用×2基(13人乗り・900kg)
警備:機械警備 24時間対応
耐震基準:新耐震基準
アスベスト:アスベスト含有の可能性がある吹付材は確認されていません(専門調査機関による調査済み)
専有部への立入:災害時・緊急時、及びビル保全に伴う建物管理作業等において、専有部への入室を伴う工事・作業等が発生します。

居抜きオフィスとは

居抜きオフィスとは、前の入居者が使っていた内装や設備(デスク・照明・会議室など)をそのまま引き継げるオフィスのことです。
通常のオフィス移転では、お引き渡し後から内装工事を行うため時間と費用がかかりますが、居抜き物件なら初期コストを抑えてスピーディに入居できます。
居抜きオフィスのメリットとしては、内装費・工事期間の大幅な削減、すぐに業務を開始することができ、特にスタートアップや支店開設など、スピードとコストを重視したい企業に人気です。
しかし、前の入居者の方の原状回復義務も承継することになりますので、退去時には引き継いだ内装や備品等の撤去工事が必要になりますので注意が必要です。

お問合せ

弊社では、居抜き物件の情報提供も受け付けております。
現在、居抜きでのお引渡しを検討しているオーナー様もご相談に乗りますので、ぜひ下記よりお問い合わせください。

株式会社クイックコンサルティング
取引態様:媒介 国土交通大臣(4)第7938号
〒103-0027
東京都中央区日本橋3-8-16 ぶよおビル5階
八木 憲政
TEL:03-5201-8040
FAX:03-5201-8041
携帯:080-5681-4212

※お問い合わせの際は「オフィシルマガジンを見て」とお伝え下さい。

関連ページ

カテゴリ: 居抜きオフィス

カテゴリ

最近の記事

人気の記事

タグ

オフィス環境 オフィスビル ベンチャー企業 オフィス不動産 賃貸オフィス スタートアップ企業 新築オフィスビル レンタルオフィス 新築ビル オフィス移転 賃貸契約 内装工事 専門職 フリーランス 貸店舗 ベンチャー企業経営者 新築オフィス レイアウト セットアップオフィス 個人事業主 oaフロア 大阪セットアップオフィス sランクビル オフィスエリア オフィス家具 再開発 オフィス訪問 オフィス コスト削減 新築 居抜き クリニック 会議室 サービスオフィス コミュニケーション活性化 坪単価 交通利便性 新大阪 soho 品川 梅田 好アクセス 大阪 エントランス コワーキングスペース シェアオフィス diy 飲食店 美容室 クリエイティブ
物件のお問い合わせ・相談無料
掲載物件数国内最大級のオフィシルへ
お気軽にお問い合わせください。
当サイトは空室情報を提供するサイトであり、貸主並びに管理窓口会社、入居テナント状況についてお答えしかねます。

オフィシルへの物件掲載は無料です。

不動産仲介会社・ビルオーナーの皆様へ。

物件掲載の申し込み
【officil(オフィシル)】は全国の賃貸オフィス・賃貸事務所を、独自の物件情報と写真から検索できる全国賃貸オフィス検索サイトです。オフィス移転に人気な東京都内の賃貸オフィスや名古屋・大阪・広島・福岡など主要都市の賃貸事務所をはじめ、国内最大規模の賃貸情報を掲載中。専任のオフィスコンサルタントが内見から契約までトータルにサポートします。オフィス移転を検討されてるお客様のご希望条件に合った、オフィス物件探しが可能です!