【立川居抜きオフィス】フロム中武【元レンタルオフィス区画】

閲覧数:256     2025年12月24日更新
カテゴリ: 居抜きオフィス

フロム中武6階に居抜きオフィスが募集中

立川を代表する老舗商業施設「フロム中武」内にて居抜きオフィス区画がこの度募集開始されました。
元々、レンタルオフィスとしてご利用されていた区画で内装や什器等が綺麗な状態のままご利用いただけます。
ご内覧も絶賛受付中です。
下記よりお気軽にお問い合わせください。

※なお、居抜きでの引き渡しには期限がございますのでご注意ください。
2026年3月末までのお申し込みが条件です

お問合せ

株式会社クイックコンサルティング
取引態様:媒介 国土交通大臣(4)第7938号
〒103-0027
東京都中央区日本橋3-8-16 ぶよおビル5階
八木 憲政
TEL:03-5201-8040
FAX:03-5201-8041
携帯:080-5681-4212

※お問い合わせの際は「オフィシルマガジンを見て」とお伝え下さい。

多摩エリア最大級のターミナル「立川駅」徒歩2分

立川駅北口から大通りに沿いに歩き、徒歩2分の立地です。
フロム中武は単なる商業施設に留まらず、「立川駅北口のランドマーク」として認知されているので、来客の多い企業や外部対応が発生する業種にとって大きな強みとなります。
また、立川駅はJR中央線・南武線・多摩モノレール線の3路線が乗り入れ、都内エリアの東西南北からアクセスが可能で、広域から人が集まりやすい立地を誇ります。

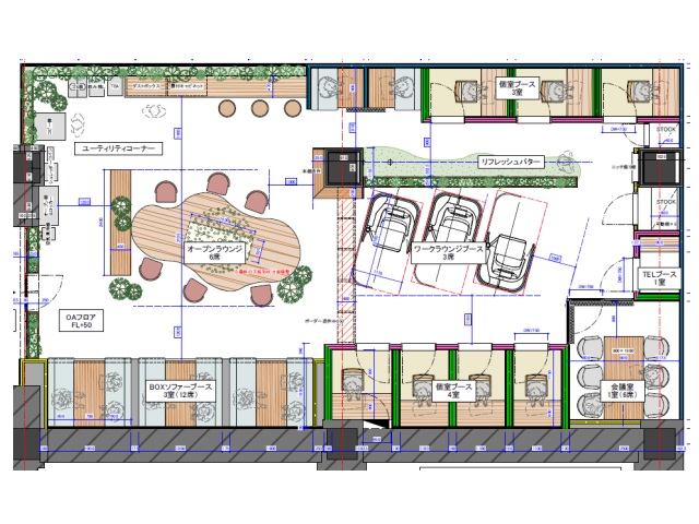
レイアウト図と室内写真

※以下のレイアウト図と写真は一例です。図面と写真より現況が異なる場合は現況を優先します。

フロム中武 6階 39.76坪

オープンラウンジ

ユーティリティコーナー

BOXソファーブース

会議室

個室ブース

テレワーク・サテライトオフィスとして使いやすい

本区画は、元レンタルオフィスとして運営されていた居抜き物件のため、個室ブースや会議室の内装造作が残っている点が大きな特長です。
Web会議やオンライン商談、集中作業など、テレワーク時代に求められる用途にそのまま対応でき、内装工事を最小限に抑えながらスムーズな拠点立ち上げが可能です。

また、路線アクセスが豊富な立川駅至近に位置しているため都心方面・多摩地域の双方からアクセスしやすく、サテライトオフィスとして社員が集まりやすい立地も魅力です。
個室と会議室を備えた本区画は、ハイブリッドワークを推進する企業にとって、無駄のない合理的なオフィス環境と言えるでしょう。

立川・フロム中武とは?駅近商業施設にオフィスを構えるメリット

フロム中武は、立川駅北口から徒歩2分に位置する、地域密着型の商業施設です。
1962年に前身となる中武デパートとして誕生して以来、60年以上にわたり立川の街と共に歩み、現在も多くの来館者に親しまれています。
館内には、飲食店やカフェ、物販、サービス店舗に加え、クリニックなども入居しており、日常利用からビジネス利用まで幅広いニーズに対応しています。

このような商業施設にオフィスを構えることで、来客時の案内のしやすさや高い視認性、周辺施設を含めた利便性の高さといったメリットが得られます。
また、ランチや打ち合わせ場所に困らない点は、社員の満足度向上にもつながります。
立川駅の交通利便性と相まって、フロム中武はオフィス拠点としても注目度の高い立地と言えるでしょう。

物件概要

・延床面積:18,011.38㎡
・売場面積:12,394.87㎡
・売場構成:物販/飲食/サービス
・店舗数:43店舗
・構造・規模:SRC造(一部RC造)
 地下1階~地上7階、屋上(RF)
・駐車台数:1,879台(特約駐車場)
・バイク駐車台数:10台(特約バイク駐車場)
・自転車駐輪台数:64台
・営業時間:10:00~20:00
 ※飲食店・クリニックなど一部店舗は異なります

居抜きオフィスとは

居抜きオフィスとは、前の入居者が使っていた内装や設備(デスク・照明・会議室など)をそのまま引き継げるオフィスのことです。
通常のオフィス移転では、お引き渡し後から内装工事を行うため時間と費用がかかりますが、居抜き物件なら初期コストを抑えてスピーディに入居できます。
居抜きオフィスのメリットとしては、内装費・工事期間の大幅な削減、すぐに業務を開始することができ、特にスタートアップや支店開設など、スピードとコストを重視したい企業に人気です。
しかし、前の入居者の方の原状回復義務も承継することになりますので、退去時には引き継いだ内装や備品等の撤去工事が必要になりますので注意が必要です。

お問合せ

弊社では、居抜き物件の情報提供も受け付けております。
現在、居抜きでのお引渡しを検討しているオーナー様もご相談に乗りますので、ぜひ下記よりお問い合わせください。

株式会社クイックコンサルティング
取引態様:媒介 国土交通大臣(4)第7938号
〒103-0027
東京都中央区日本橋3-8-16 ぶよおビル5階
八木 憲政
TEL:03-5201-8040
FAX:03-5201-8041
携帯:080-5681-4212

※お問い合わせの際は「オフィシルマガジンを見て」とお伝え下さい。

関連ページ

カテゴリ: 居抜きオフィス

カテゴリ

最近の記事

人気の記事

タグ

オフィス環境 オフィスビル ベンチャー企業 オフィス不動産 賃貸オフィス スタートアップ企業 新築オフィスビル レンタルオフィス 新築ビル オフィス移転 賃貸契約 内装工事 専門職 フリーランス 貸店舗 ベンチャー企業経営者 新築オフィス レイアウト セットアップオフィス 個人事業主 oaフロア 大阪セットアップオフィス sランクビル オフィスエリア オフィス家具 再開発 オフィス訪問 オフィス コスト削減 新築 居抜き クリニック 会議室 サービスオフィス コミュニケーション活性化 坪単価 交通利便性 新大阪 soho 品川 梅田 好アクセス 大阪 エントランス コワーキングスペース シェアオフィス diy 飲食店 美容室 クリエイティブ
物件のお問い合わせ・相談無料
掲載物件数国内最大級のオフィシルへ
お気軽にお問い合わせください。
当サイトは空室情報を提供するサイトであり、貸主並びに管理窓口会社、入居テナント状況についてお答えしかねます。

オフィシルへの物件掲載は無料です。

不動産仲介会社・ビルオーナーの皆様へ。

物件掲載の申し込み
【officil(オフィシル)】は全国の賃貸オフィス・賃貸事務所を、独自の物件情報と写真から検索できる全国賃貸オフィス検索サイトです。オフィス移転に人気な東京都内の賃貸オフィスや名古屋・大阪・広島・福岡など主要都市の賃貸事務所をはじめ、国内最大規模の賃貸情報を掲載中。専任のオフィスコンサルタントが内見から契約までトータルにサポートします。オフィス移転を検討されてるお客様のご希望条件に合った、オフィス物件探しが可能です!