【ハーフセットアップオフィス】大阪市中央区・淀屋橋駅から徒歩5分【128.24坪】

閲覧数:190     2026年1月23日更新
カテゴリ: 居抜きオフィス

日建ビル1号館 4階128.24坪

淀屋橋駅から徒歩5分
肥後橋駅から徒歩3分

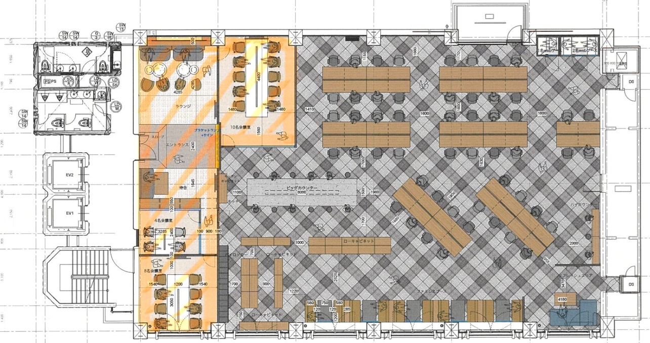
レイアウト

オレンジの斜線エリアのみが家具什器付きとなります。
エントランス、ラウンジ、4名用会議室、8名用会議室、10名用会議室
執務スペースは約60名前後を想定した無柱のゆとりのあるスペースが確保されています。

内覧のご希望や、賃貸条件のご確認は下記までお気軽にお問合せ下さい。

株式会社クイックコンサルティング 大阪支店
取引態様:媒介 国土交通大臣(4)第7938号
〒550-0004 大阪市西区靱本町1-11-7 信濃橋三井ビル11階
TEL:06-6147-9791 FAX:06-6147-9792
担当:慈幸(じこう) 携帯:080-5681-4211
お問合せの際は「オフィシルマガジンを見て」とお伝えください

イメージパース

エントランスイメージパース(正面)

エントランスイメージパース(横)

会議室イメージパース

執務スペースイメージ
天井スケルトン、柱のない空間、採光たっぷりの明るく開放的な空間が魅力です

お問合せ

内覧のご希望や、賃貸条件のご確認は下記までお気軽にお問合せ下さい。

株式会社クイックコンサルティング 大阪支店
取引態様:媒介 国土交通大臣(4)第7938号
〒550-0004 大阪市西区靱本町1-11-7 信濃橋三井ビル11階
TEL:06-6147-9791 FAX:06-6147-9792
担当:慈幸(じこう) 携帯:080-5681-4211
お問合せの際は「オフィシルマガジンを見て」とお伝えください

物件概要

所在地:大阪市中央区高麗橋四丁目6番12号(住居表示)

アクセス:
大阪メトロ御堂筋線「淀屋橋」駅 徒歩5分
大阪メトロ四つ橋線「肥後橋」駅 徒歩3分

構造・規模:鉄骨鉄筋コンクリート造・鉄筋コンクリート造/地上7階・地下1階・塔屋1階

竣工年月:1968年8月(2025年フルリニューアル)

耐震性:新耐震基準相当を満たす

延床面積:4,140.97㎡(1,252.64坪)

空調方式:個別空調

エレベーター:2基

天井高:
1~5階 3,140mm
6階 3,040mm
7階 2,800~2,878mm
B1階 4,015mm(一部3,500mmあり)
備考:いずれも天井躯体現し(7階のみ天井躯体部がロックウール吸音板)

床上げ:OAフロアなし(OA敷設 応相談)

床荷重:300kg/㎡

電気容量:約60VA/㎡(基準階)

床仕様:リノリウム床シート

照明設備:標準LED照明(リーラーコンセント付き)

貸室内設備:給排水引込可(各フロア毎・要相談)

駐車場:5台

駐輪場:6台(自動二輪の場合3台)

機械警備:有

関連ページ

カテゴリ: 居抜きオフィス

カテゴリ

最近の記事

人気の記事

タグ

オフィス環境 オフィスビル ベンチャー企業 オフィス不動産 賃貸オフィス スタートアップ企業 新築オフィスビル レンタルオフィス 新築ビル オフィス移転 賃貸契約 内装工事 専門職 フリーランス 貸店舗 ベンチャー企業経営者 新築オフィス レイアウト セットアップオフィス 個人事業主 oaフロア 大阪セットアップオフィス sランクビル オフィスエリア オフィス家具 再開発 オフィス訪問 オフィス コスト削減 新築 居抜き クリニック 会議室 サービスオフィス コミュニケーション活性化 坪単価 交通利便性 新大阪 soho 品川 梅田 好アクセス 大阪 エントランス コワーキングスペース シェアオフィス diy 飲食店 美容室 クリエイティブ
物件のお問い合わせ・相談無料
掲載物件数国内最大級のオフィシルへ
お気軽にお問い合わせください。
当サイトは空室情報を提供するサイトであり、貸主並びに管理窓口会社、入居テナント状況についてお答えしかねます。

オフィシルへの物件掲載は無料です。

不動産仲介会社・ビルオーナーの皆様へ。

物件掲載の申し込み
【officil(オフィシル)】は全国の賃貸オフィス・賃貸事務所を、独自の物件情報と写真から検索できる全国賃貸オフィス検索サイトです。オフィス移転に人気な東京都内の賃貸オフィスや名古屋・大阪・広島・福岡など主要都市の賃貸事務所をはじめ、国内最大規模の賃貸情報を掲載中。専任のオフィスコンサルタントが内見から契約までトータルにサポートします。オフィス移転を検討されてるお客様のご希望条件に合った、オフィス物件探しが可能です!